bed A development of 2 to 5 bedroom homes


Richmond Point presents a choice of 2, 3, 4 & 5 bedroom homes on the northern edge of Lytham St Annes, surrounded by countryside yet close to beautiful beaches, golf and town amenities.
With excellent schools, upmarket shops, restaurants and bars, and a wealth of leisure activities nearby, Richmond Point perfectly combines lifestyle, convenience and style, with easy access to the M55 and local rail connections.
Update the filters to display more properties
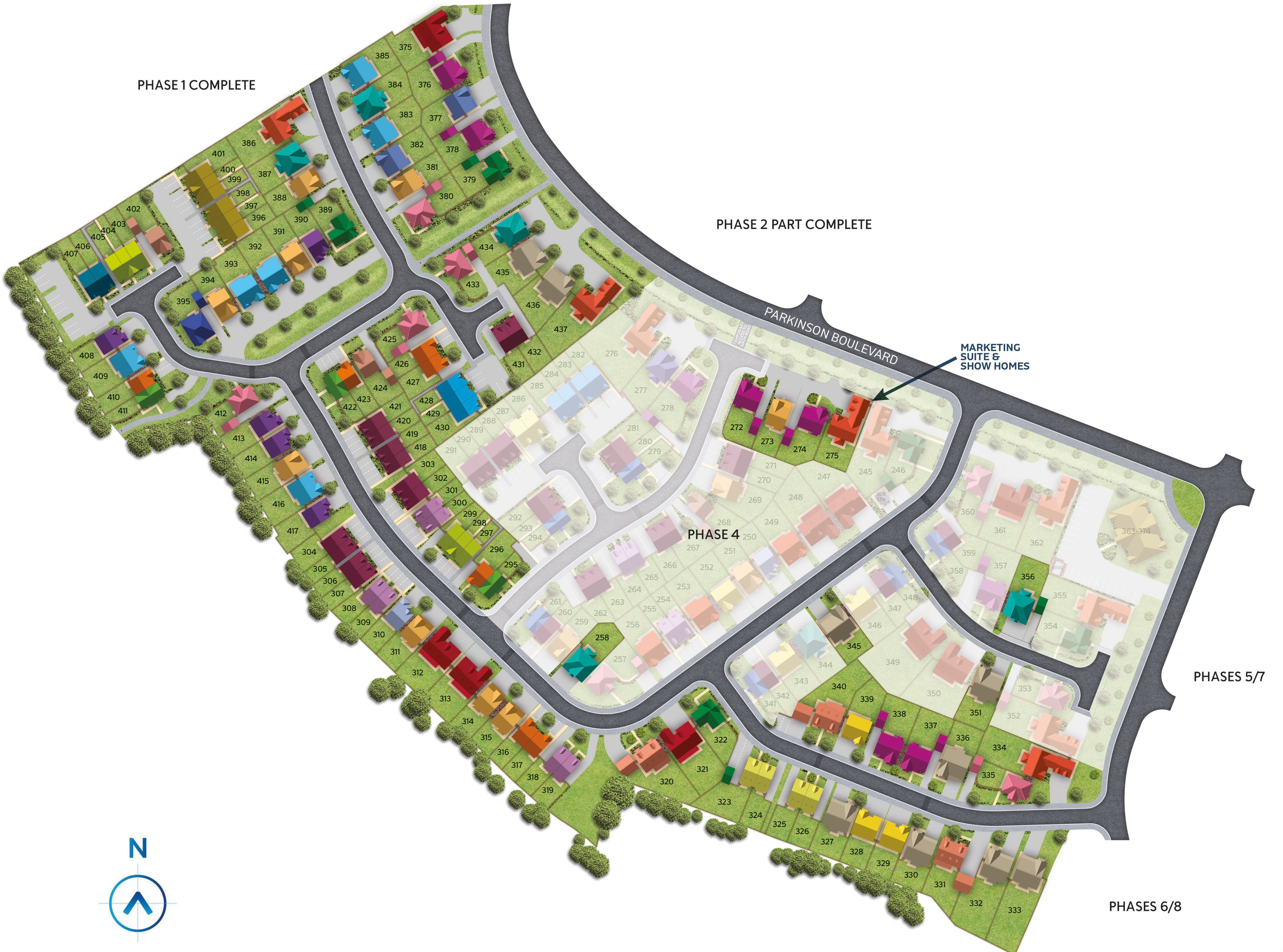
Click + to enlarge the site plan
The location of affordable homes is indicative and may change.
The location of affordable homes is indicative and may change.
Update the filters to display more properties
2 bedroom mews home - 749 sq ft
3 bedroom semi-detached/mews home with parking - 797 sq ft
3 bedroom semi-detached/mews home with parking - 895 sq ft
3 bedroom semi-detached home - 895 sq ft
3 bedroom semi-detached home with parking - 880 sq ft
3 bedroom semi-detached home - 932 sq ft
3 bedroom detached home with garage - 900 sq ft
3 bedroom detached home with detached garage - 982 sq ft
4 bedroom detached home with integral garage - 1112 sq ft
4 bedroom detached home with detached garage - 1241 sq ft
4 bedroom detached home with integral garage - 1248 sq ft
4 bedroom detached home with detached garage - 1305 sq ft
4 bedroom detached home with integral garage - 1374 sq ft
4 bedroom detached home with integral garage - 1399 sq ft
4 bedroom detached home with integral garage - 1410 sq ft
4 bedroom detached home with detached garage - 1473 sq ft
4 bedroom detached home with detached garage - 1405 sq ft
4 bedroom detached home with integral garage - 1543 sq ft
5 bedroom detached home with double garage - 2068 sq ft
5 bedroom detached home with double garage - 1969 sq ft
4 bedroom detached home with garage - 1231 sq ft
5 bedroom detached home with double garage - 1984 sq ft
4 bedroom semi-detached home - 1094 sq ft
4 bedroom detached home with detached garage - 1404 sq ft
3 bedroom detached home - 1046 sq ft
4 bedroom detached home with garage - 1217 sq ft
3 bedroom detached home with garage - 969 sq ft
4 bedroom detached home - 1557 sq ft
5 bedroom detached home with double garage - 2039 sq ft
4 bedroom detached home with detached garage - 1294 sq ft
4 bedroom detached home with garage - 1096 sq ft
4 bedroom semi-detached home - 1225 sq ft
4 bedroom detached home with garage - 1228 sq ft
3 bedroom semi-detached/mews home - 792 sq ft
3 bedroom semi-detached/mews home - 827 sq ft
4 bedroom detached home with driveway - 1515 sq ft
3 bedroom semi-detached/mews home - 828 sq ft
3 bedroom semi-detached/mews home - 792 sq ft
3 bedroom semi-detached home - 895 sq ft
4 bedroom detached home with detached double garage
4 bedroom detached home with garage
4 bedroom detached home with double garage
3 bedroom detached home with detached garage
4 bedroom detached home with detached double garage
3 bedroom detached home with detached garage
5 bedroom detached home with detached double garage
Costs associated with a new home purchase:
*Stamp Duty paid at first rate only. Available on selected plots. Terms & conditions apply. Please ask Sales Executive for details. **Source HBF 'Watt a Save' report February 2026.




This content is from an external site. Please "Allow functional - social cookies" to see the video.
In partnership with our Independent Financial Advisors, RSC New Homes Ltd, find out approximately how much your mortgage repayments will be.
Lytham St Annes is home to several shopping locations, entertainment venues and great transport links.
Transport links are excellent, with local neighbours Blackpool and Preston just 10 minutes and 30 minutes’ drive away by car respectively. The M55 motorway is only 3.5 miles away and offers easy connection to the M6 at Preston and the wider motorway network beyond. There's also a handy train station connecting with the rail network.
Upmarket shops, restaurants, bars, traditional pubs, sports and leisure clubs and two world class golf courses are all nearby in this unique and special part of North West England. There are also miles of wide open beaches and colourful countryside, which offers limitless opportunities for walking, cycling, horse riding and relaxing, with an opportunity for local wildlife and habitat to thrive and prosper.
Experience the luxury of a Rowland home for yourself. Enquire via our form or call us and one of our team will happily assist you further.
| Mon | 10.30am - 4.30pm |
| Tue | 10.30am - 5pm |
| Wed | 10.30am - 5pm |
| Thu | 12pm - 5pm |
| Fri | 10.30am - 5pm |
| Sat | 10.30am - 5.30pm |
| Sun | 10.30am - 5.30pm |
To keep updated for launch details please select 'Yes' to Marketing Information, you can opt out at anytime.
CloseRowland is committed to investing in schools, local infrastructure, public open spaces and local communities around Richmond Point.
View all community news
