High specification kitchen
Open today 10:30am - 4:30pm

Royal Gardens

bed A development of 3 & 4 bedroom homes

Stunning street scene
Move in for summer on selected plots

Opening times at Royal Gardens

Show Homes open
Monday 10:30am - 4:30pm
Tuesday Closed
Wednesday Closed
Thursday 12pm - 5pm
Friday 10.30am - 5pm
Saturday 10.30am - 5.30pm
Sunday 10.30am - 5.30pm

Get your brochure

Beautifully designed homes in a location you’ll love

Royal Gardens offers a stunning collection of 3 & 4 bedroom homes in the historic coastal village of Bispham, Blackpool. Combining contemporary design with modern living, this new community offers stylish, welcoming homes in a vibrant yet peaceful setting.

With sandy beaches, green spaces, excellent schools and leisure amenities nearby, Royal Gardens delivers the perfect blend of coastal living and practical convenience.

  • Close to beautiful beaches
  • Shops, restaurants and leisure nearby
  • Excellent transport links via M55, rail and tramway
  • Close to Blackpool town centre and the Fylde Coast
Pinch to zoom
Offer banner

Why buying new from Rowland could be more affordable than you think!

New Build Lending

New build homes mean fewer repairs and lower maintenance costs. Lenders can factor this into your mortgage amount, meaning you could potentially borrow more.

First Time Buyers

For those stepping onto the property ladder for the first time, there are exciting options: Mortgages with up to 95% financing are available and some lenders even offer 100% mortgages for current renters.

Energy Efficient Lending

Lenders are increasingly favouring homes with high energy ratings. If you’re looking at one of our stunning homes, you’re in luck, as these properties boast A or B energy ratings, making them even more appealing to lenders.

Make an appointment to talk to our Independent Financial Advisors to find out how we can help get you moving to the home of your dreams.

Sorry, we currently have no homes available matching this search

Update the filters to display more properties

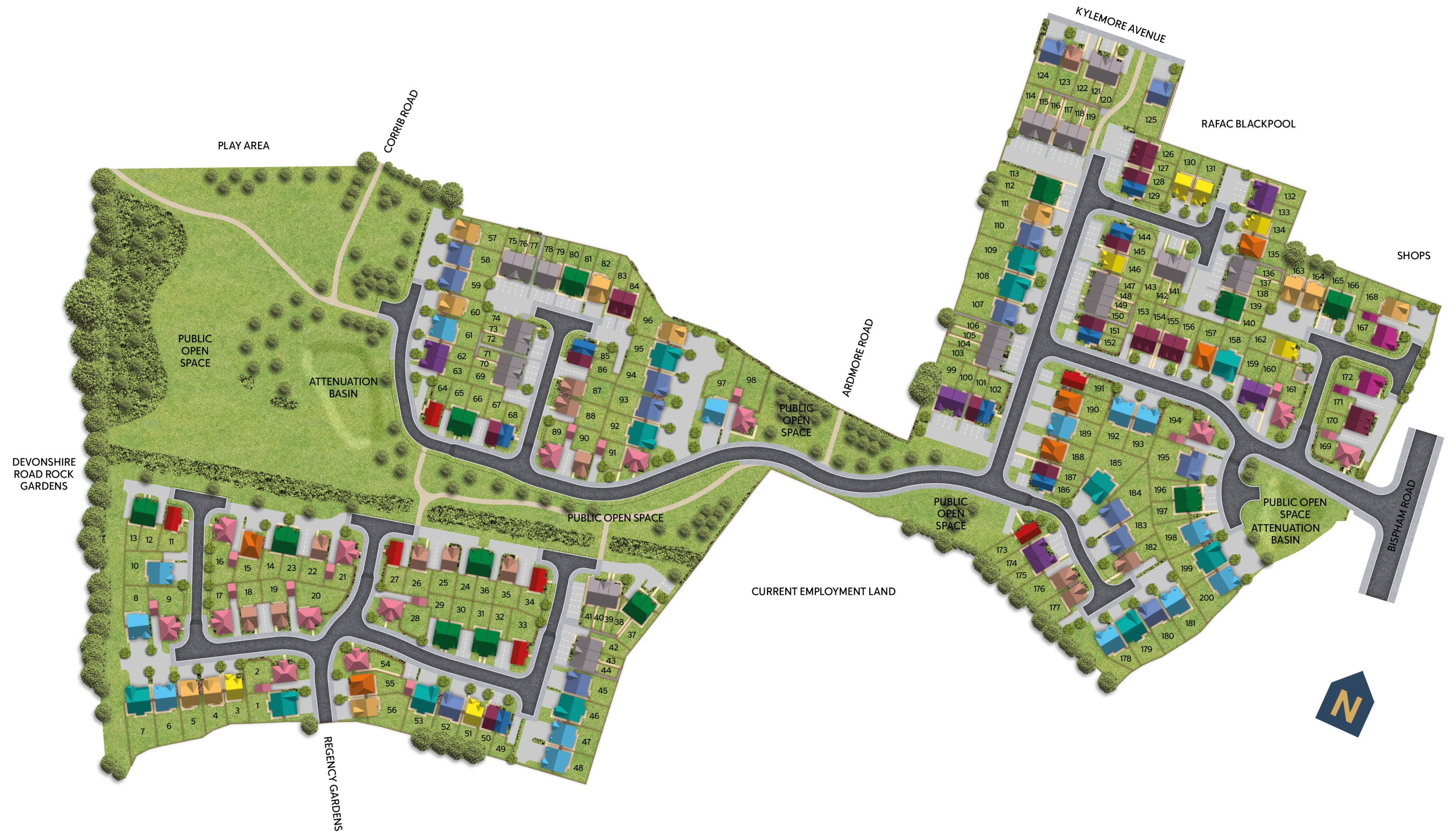
View the interactive site plan at Royal Gardens

Royal Gardens

Royal Gardens site plan

Click + to enlarge the site plan

add
remove
restart_alt
Royal Gardens Sitemap
download_for_offline Download site plan
tune Filters
Sorry, we currently have no homes available matching this search

Update the filters to display more properties

  • For SaleFor sale
  • Coming soonComing soon
  • ReservedReserved
  • SoldSold
  • Show HomeShow Home

  • Affordable homes
Click on a dot to get house type details & plans
The Burlington B

3 bedroom semi-detached home with driveway - 797 sq ft

The Ashgate II B

3 bedroom semi-detached home with parking - 828 sq ft

The Bridewell B

3 bedroom semi-detached home with driveway - 880 sq ft

The Oakwell B

3 bedroom semi-detached home - 895 sq ft

The Buckshaw

3 bedroom detached home - 932 sq ft

The Adlington B

3 bedroom detached home - 1051 sq ft

The Holbrook B

4 bedroom detached home with integral garage - 1164 sq ft

The Hatton B

4 bedroom detached home with integral garage - 1374 sq ft

The Reynold B

4 bedroom detached home with detached garage - 1405 sq ft

The Colshaw B

4 bedroom detached home with integral garage - 1543 sq ft

The Aroncroft B

4 bedroom detached home with integral garage - 1248 sq ft

The Charleston B

3 bedroom detached home with parking - 982 sq ft

The Bowes B

4 bedroom detached home with garage - 1112 sq ft

The Bonington B

4 bedroom detached home with detached garage - 1241 sq ft

Affordable Housing

The Buckshaw

Plot 191
3 bedroom detached home - 932 sq ft
Sold
The Buckshaw

The Buckshaw

Plot 173
3 bedroom detached home - 932 sq ft
Sold
The Buckshaw

The Holbrook B

Plot 190
4 bedroom detached home with integral garage - 1164 sq ft
Sold
The Holbrook B

The Holbrook B

Plot 188
4 bedroom detached home with integral garage - 1164 sq ft
Sold
The Holbrook B

The Holbrook B

Plot 157
4 bedroom detached home with integral garage - 1164 sq ft
Sold
The Holbrook B

The Holbrook B

Plot 135
4 bedroom detached home with integral garage - 1164 sq ft
£299,995
The Holbrook B

The Aroncroft B

Plot 195
4 bedroom detached home with integral garage - 1248 sq ft
Show Home
The Aroncroft B

The Aroncroft B

Plot 184
4 bedroom detached home with integral garage - 1248 sq ft
Sold
The Aroncroft B

The Aroncroft B

Plot 183
4 bedroom detached home with integral garage - 1248 sq ft
Sold
The Aroncroft B

The Aroncroft B

Plot 125
4 bedroom detached home with integral garage - 1248 sq ft
Coming Soon
The Aroncroft B

The Aroncroft B

Plot 124
4 bedroom detached home with integral garage - 1248 sq ft
Coming Soon
The Aroncroft B

The Aroncroft B

Plot 110
4 bedroom detached home with integral garage - 1248 sq ft
Coming Soon
The Aroncroft B

The Aroncroft B

Plot 107
4 bedroom detached home with integral garage - 1248 sq ft
Coming Soon
The Aroncroft B

The Aroncroft B

Plot 180
4 bedroom detached home with integral garage - 1248 sq ft
Reserved
The Aroncroft B

The Charleston B

Plot 182
3 bedroom detached home with parking - 982 sq ft
Sold
The Charleston B

The Charleston B

Plot 177
3 bedroom detached home with parking - 982 sq ft
Sold
The Charleston B

The Charleston B

Plot 123
3 bedroom detached home with parking - 982 sq ft
Coming Soon
The Charleston B

The Charleston B

Plot 176
3 bedroom detached home with parking - 982 sq ft
Sold
The Charleston B

The Bowes B

Plot 168
4 bedroom detached home with garage - 1112 sq ft
Sold
The Bowes B

The Bowes B

Plot 163
4 bedroom detached home with garage - 1112 sq ft
Sold
The Bowes B

The Bowes B

Plot 111
4 bedroom detached home with garage - 1112 sq ft
Coming Soon
The Bowes B

The Bowes B

Plot 164
4 bedroom detached home with garage - 1112 sq ft
Sold
The Bowes B

The Bonington B

Plot 194
4 bedroom detached home with detached garage - 1241 sq ft
Coming Soon
The Bonington B

The Bonington B

Plot 169
4 bedroom detached home with detached garage - 1241 sq ft
Sold
The Bonington B

The Bonington B

Plot 161
4 bedroom detached home with detached garage - 1241 sq ft
Sold
The Bonington B

The Ashgate II B

Plot 186
3 bedroom semi-detached home with parking - 828 sq ft
Sold
The Ashgate II B

The Ashgate II B

Plot 144
3 bedroom semi-detached home with parking - 828 sq ft
£224,995
The Ashgate II B

The Ashgate II B

Plot 129
3 bedroom semi-detached home with parking - 828 sq ft
Coming Soon
The Ashgate II B

The Ashgate II B

Plot 102
3 bedroom semi-detached home with parking - 828 sq ft
Coming Soon
The Ashgate II B

The Ashgate II B

Plot 152
3 bedroom semi-detached home with parking - 828 sq ft
5% deposit paid worth £11,249* Plus flooring package included* Ready to move into for summer*
£224,995
The Ashgate II B

The Oakwell B

Plot 197
3 bedroom semi-detached home - 895 sq ft
Sold
The Oakwell B

The Oakwell B

Plot 196
3 bedroom semi-detached home - 895 sq ft
Show Home
The Oakwell B

The Oakwell B

Plot 166
3 bedroom semi-detached home - 895 sq ft
Sold
The Oakwell B

The Oakwell B

Plot 140
3 bedroom semi-detached home - 895 sq ft
£231,995
The Oakwell B

The Oakwell B

Plot 113
3 bedroom semi-detached home - 895 sq ft
Coming Soon
The Oakwell B

The Oakwell B

Plot 112
3 bedroom semi-detached home - 895 sq ft
Coming Soon
The Oakwell B

The Oakwell B

Plot 165
3 bedroom semi-detached home - 895 sq ft
Sold
The Oakwell B

The Oakwell B

Plot 139
3 bedroom semi-detached home - 895 sq ft
£6,899 deposit contribution* Plus help towards your legal fees* Ready to move into for summer*
£229,995
The Oakwell B

The Colshaw B

Plot 199
4 bedroom detached home with integral garage - 1543 sq ft
Sold
The Colshaw B

The Colshaw B

Plot 179
4 bedroom detached home with integral garage - 1543 sq ft
£385,995
The Colshaw B

The Colshaw B

Plot 158
4 bedroom detached home with integral garage - 1543 sq ft
Sold
The Colshaw B

The Colshaw B

Plot 109
4 bedroom detached home with integral garage - 1543 sq ft
Coming Soon
The Colshaw B

The Colshaw B

Plot 108
4 bedroom detached home with integral garage - 1543 sq ft
Coming Soon
The Colshaw B

The Colshaw B

Plot 185
4 bedroom detached home with integral garage - 1543 sq ft
House to sell? Ask about our Part Exchange Scheme* Plus includes over £9,600 worth of extras* Ready to move into for summer* View today!
£388,995
The Colshaw B

The Reynold B

Plot 172
4 bedroom detached home with detached garage - 1405 sq ft
Sold
The Reynold B

The Reynold B

Plot 167
4 bedroom detached home with detached garage - 1405 sq ft
House to sell? Ask about our Part Exchange Scheme.* Plus includes over £9,700 worth of upgrades.* Ready to move into for summer* View today!
£359,995
The Reynold B

The Hatton B

Plot 200
4 bedroom detached home with integral garage - 1374 sq ft
Sold
The Hatton B

The Hatton B

Plot 193
4 bedroom detached home with integral garage - 1374 sq ft
Reserved
The Hatton B

The Hatton B

Plot 192
4 bedroom detached home with integral garage - 1374 sq ft
Sold
The Hatton B

The Hatton B

Plot 178
4 bedroom detached home with integral garage - 1374 sq ft
£342,995
The Hatton B

The Hatton B

Plot 198
4 bedroom detached home with integral garage - 1374 sq ft
Sold
The Hatton B

The Hatton B

Plot 189
4 bedroom detached home with integral garage - 1374 sq ft
Reserved
The Hatton B

The Hatton B

Plot 181
4 bedroom detached home with integral garage - 1374 sq ft
Reserved
The Hatton B

The Adlington B

Plot 162
3 bedroom detached home - 1051 sq ft
Sold
The Adlington B

The Adlington B

Plot 131
3 bedroom detached home - 1051 sq ft
Reserved
The Adlington B

The Adlington B

Plot 146
3 bedroom detached home - 1051 sq ft
Sold
The Adlington B

The Adlington B

Plot 130
3 bedroom detached home - 1051 sq ft
Coming Soon
The Adlington B

The Adlington B

Plot 134
3 bedroom detached home - 1051 sq ft
£8,099 deposit contribution* Plus £1,000 towards legal fees* Ready to move into for summer*
£269,995
The Adlington B

The Burlington B

Plot 187
3 bedroom semi-detached home with driveway - 797 sq ft
Sold
The Burlington B

The Burlington B

Plot 171
3 bedroom semi-detached home with driveway - 797 sq ft
Sold
The Burlington B

The Burlington B

Plot 170
3 bedroom semi-detached home with driveway - 797 sq ft
Show Home
The Burlington B

The Burlington B

Plot 156
3 bedroom semi-detached home with driveway - 797 sq ft
Sold
The Burlington B

The Burlington B

Plot 145
3 bedroom semi-detached home with driveway - 797 sq ft
£214,995
The Burlington B

The Burlington B

Plot 128
3 bedroom semi-detached home with driveway - 797 sq ft
Coming Soon
The Burlington B

The Burlington B

Plot 127
3 bedroom semi-detached home with driveway - 797 sq ft
Coming Soon
The Burlington B

The Burlington B

Plot 126
3 bedroom semi-detached home with driveway - 797 sq ft
Coming Soon
The Burlington B

The Burlington B

Plot 101
3 bedroom semi-detached home with driveway - 797 sq ft
Coming Soon
The Burlington B

The Burlington B

Plot 154
3 bedroom semi-detached home with driveway - 797 sq ft
£214,995
The Burlington B

The Burlington B

Plot 155
3 bedroom semi-detached home with driveway - 797 sq ft
Sold
The Burlington B

The Burlington B

Plot 151
3 bedroom semi-detached home with driveway - 797 sq ft
Ready to move into for summer*
£214,995
The Burlington B

The Burlington B

Plot 153
3 bedroom semi-detached home with driveway - 797 sq ft
5% deposit paid worth £10,849* Plus flooring package included* Ready to move into for summer* View our Burlington Show Home today!
£216,995
The Burlington B

The Bridewell B

Plot 175
3 bedroom semi-detached home with driveway - 880 sq ft
Reserved
The Bridewell B

The Bridewell B

Plot 174
3 bedroom semi-detached home with driveway - 880 sq ft
Sold
The Bridewell B

The Bridewell B

Plot 160
3 bedroom semi-detached home with driveway - 880 sq ft
Sold
The Bridewell B

The Bridewell B

Plot 132
3 bedroom semi-detached home with driveway - 880 sq ft
£229,995
The Bridewell B

The Bridewell B

Plot 100
3 bedroom semi-detached home with driveway - 880 sq ft
Coming Soon
The Bridewell B

The Bridewell B

Plot 99
3 bedroom semi-detached home with driveway - 880 sq ft
Coming Soon
The Bridewell B

The Bridewell B

Plot 159
3 bedroom semi-detached home with driveway - 880 sq ft
Sold
The Bridewell B

The Bridewell B

Plot 133
3 bedroom semi-detached home with driveway - 880 sq ft
£6,899 deposit contribution* Plus £1,000 towards legal fees* Ready to move into for summer*
£229,995
The Bridewell B
Filter
Beautiful interiors

Useful info

  • All homes on Royal Gardens are built using traditional brick and block construction methods
  • Planning permission reference: 22/0670 Fylde Council
  • Estimated Service Charge - £154.75 Per Annum

Costs associated with a new home purchase:

  • Management Fee - £36.00 
  • Engrossment Fee - £180.00
  • Plans Fee - £36.00
  • Mortgage Notice Fee - £60.00 (if applicable)

Offers and incentives at Royal Gardens

*Stamp Duty paid at first rate only. Available on selected plots. Terms & conditions apply. Please ask Sales Executive for details. **Source HBF 'Watt a Save' report February 2026.

What’s in the local area

Schools

  • Bispham Endowed Church of England Primary School
  • Kincraig Primary School
  • Montgomery High School
  • Layton Primary School
  • Blackpool & The Fylde College
  • Unity Academy Blackpool
  • Moor Park Primary School

Transport links

  • Layton Station
  • Blackpool North Railway Station
  • Bispham Station

Places to go

  • Blackpool North Shore Golf Course
  • Rock Gardens
  • Stanley Park
  • Bispham Beach

Local amenities

  • Sainsburys
  • Aldi
  • Bispham Pharmacy
  • Tesco Express
Open Map View
Open Map View

Take the next step to your dream home today

Experience the luxury of a Rowland home for yourself. Enquire via our form or call us and one of our team will happily assist you further.

*Mandatory fields
*Mandatory fields
Drag files here or click to upload
*Mandatory fields
3 & 4 bedroom homes
Two stunning Show Homes now open
Mon 10:30am - 4:30pm
Tue Closed
Wed Closed
Thu 12pm - 5pm
Fri 10.30am - 5pm
Sat 10.30am - 5.30pm
Sun 10.30am - 5.30pm
location_on
Bispham Road,
Bispham,
Lancashire,
FY2 0NG
Find us via
map Google Maps chevron_right

To keep updated for launch details please select 'Yes' to Marketing Information, you can opt out at anytime.

Close

More developments nearby

Request an appointment at Royal Gardens

*Mandatory fields
Cart

My favourite homes


Item removed. Undo

Leaving Rowland

You are about to leave the Rowland website, are you sure you want to proceed?